or call us on 020 8892 5656
2 bed for Sale
The Green, Twickenham, TW2
Offers in Excess of £525,000
Book a viewing
Description
- Direct Views over Picturesque Twickenham Green!
- No Chain & Share of Freehold.
- Semi-open plan kitchen/living area
- Two bright double bedrooms.
- Family bathroom with bath and separate shower
- Private gated outdoor area.
- Period conversion with high ceilings & double glazed sash windows
- Close to shops, cafes, restaurants, the River Thames, and excellent transport links.
Direct Views over Picturesque Twickenham Green! Newly redecorated and carpeted, character-filled two double bedroom period conversion on the first (top) floor, offering light-filled, semi-open plan living with a private courtyard at the rear. NO CHAIN and Share of Freehold. Open Home Saturday!
This ideally located period conversion property has its own private entrance on the ground floor via a shared front door and lobby, and offers the ambience of its era with high ceilings, large double glazed sash windows, picture rails and feature fireplace. There are two excellent size double bedrooms that have large windows creating a lot of natural light.
There is a generous, light filled family bathroom with a bath and a separate shower cubicle complementing it with wood-effect flooring. The kitchen has a semi-open plan feel and incorporates an integrated dishwasher and fridge freezer, washer/dryer, oven and gas hob. The living areas overlook Twickenham Green and there is useful built-in storage throughout the property, plus a generous, half boarded and fully insulated loft space.
There is a private outside space to the rear/side of the property, perfect for a table and chairs or possibly for a small storage shed.
The property offers gas central heating with a recently installed boiler, double glazing, and parking is available with a residents parking permit (approximately £90 per year for the first car).
Twickenham Green is within a conservation area nestled in a picturesque area of South West London and offers great access to leisure activities, community events, and outdoor sports like cricket, cycling and personal fitness. This is one of the few properties with a view of this pretty green space.
Charming shops, cafes, and restaurants dot the neighbourhood, providing a wide range of culinary and shopping experiences, plus you are close to all the amenities and convenience of Twickenham, Richmond and Kingston including world class sport and music events at the Allianz stadium. The River Thames is within easy reach, offering residents the opportunity to enjoy riverside walks, boat rides, historic houses and scenic views. The royal parks at Bushy and Richmond are close by. This location has excellent transport links, including easy access to central London with a choice of 2 railway stations - Twickenham and St Margarets, and to Heathrow and the M3 and M4 corridors. Buses stop directly outside the property.
The property is also close to several excellent schools, including St. Mary's & St. Peter's CE Primary, Archdeacon Cambridge Primary, and Orleans Park School.
Council Tax Band: B
Tenure: Share of Freehold
CHAIN FREE
Council Tax Band: B (Richmond Borough Council)
Tenure: Share of Freehold
Garden details: Private Garden
There is a generous, light filled family bathroom with a bath and a separate shower cubicle complementing it with wood-effect flooring. The kitchen has a semi-open plan feel and incorporates an integrated dishwasher and fridge freezer, washer/dryer, oven and gas hob. The living areas overlook Twickenham Green and there is useful built-in storage throughout the property, plus a generous, half boarded and fully insulated loft space.
There is a private outside space to the rear/side of the property, perfect for a table and chairs or possibly for a small storage shed.
The property offers gas central heating with a recently installed boiler, double glazing, and parking is available with a residents parking permit (approximately £90 per year for the first car).
Twickenham Green is within a conservation area nestled in a picturesque area of South West London and offers great access to leisure activities, community events, and outdoor sports like cricket, cycling and personal fitness. This is one of the few properties with a view of this pretty green space.
Charming shops, cafes, and restaurants dot the neighbourhood, providing a wide range of culinary and shopping experiences, plus you are close to all the amenities and convenience of Twickenham, Richmond and Kingston including world class sport and music events at the Allianz stadium. The River Thames is within easy reach, offering residents the opportunity to enjoy riverside walks, boat rides, historic houses and scenic views. The royal parks at Bushy and Richmond are close by. This location has excellent transport links, including easy access to central London with a choice of 2 railway stations - Twickenham and St Margarets, and to Heathrow and the M3 and M4 corridors. Buses stop directly outside the property.
The property is also close to several excellent schools, including St. Mary's & St. Peter's CE Primary, Archdeacon Cambridge Primary, and Orleans Park School.
Council Tax Band: B
Tenure: Share of Freehold
CHAIN FREE
Council Tax Band: B (Richmond Borough Council)
Tenure: Share of Freehold
Garden details: Private Garden
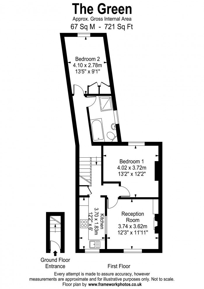
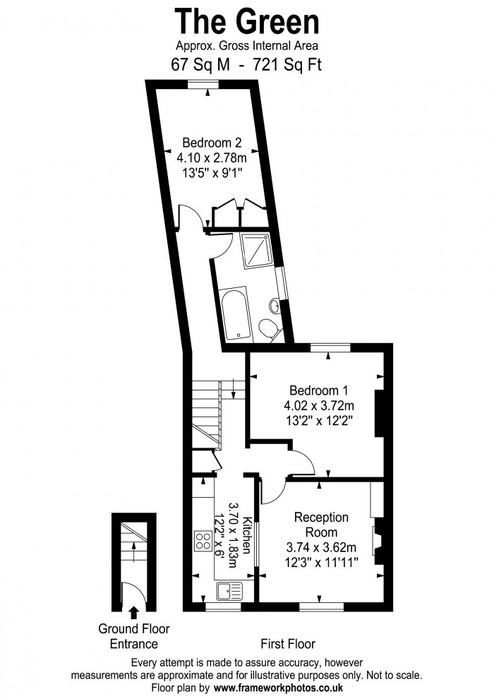
Floorplan & EPC

